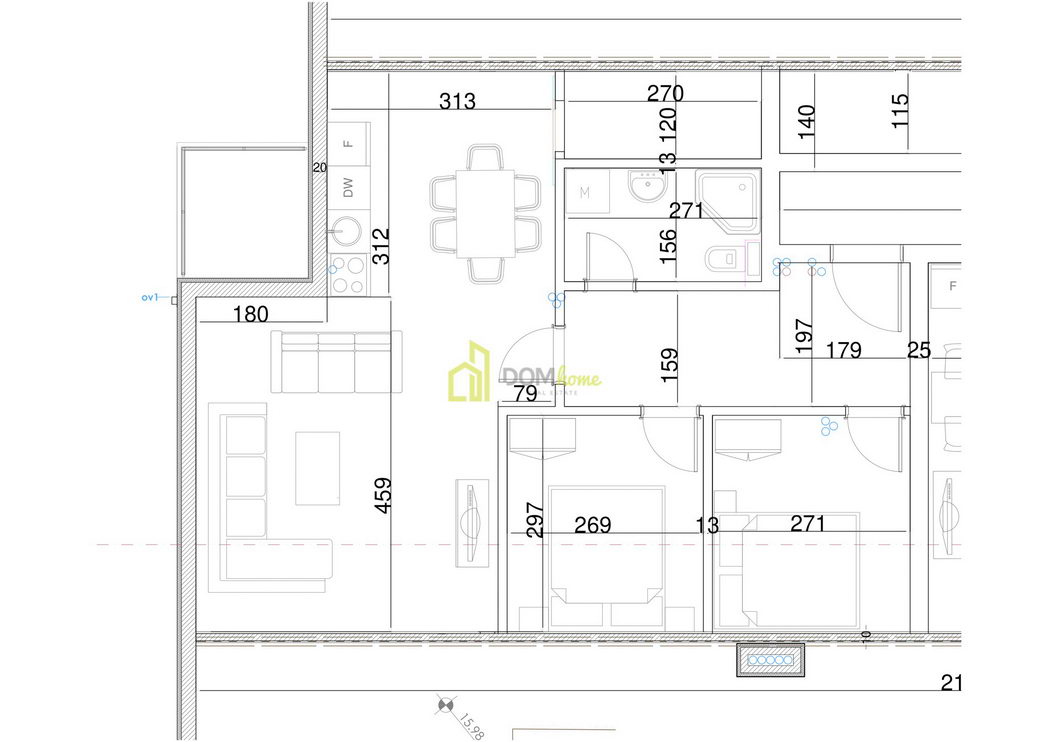
Two bedroom apartment 62m2, Ljubović-Zabjelo
Ref. ID: 8268
Two bedroom apartment 62m2 for sale, Ljubović-Zabjelo.
It is located on the sixth floor, which is also the last in the building that has an elevator.
The apartment will be ready soon and air conditioning will be installed.
The orientation is south-west.
Structure of the apartment: entrance hall, living room, kitchen, two bedrooms, bathroom and storage room.
The building is well connected to other parts of the city and to all important city facilities and is in the immediate vicinity of the central shopping area in Podgorica, recreational and entertainment facilities, as well as schools, colleges, banks, institutions, etc.
The parking lot for tenants is located around the building, and the location of the apartment is very urban, close to all the necessary amenities.
62㎡
Total surface area
2
Number of bedrooms
1
Number of bathrooms
-
City: Podgorica
-
Settlement: Zabjelo
-
Floor: 6
-
Additional feature: In construction
Infrastructure and equipment
Air-conditioner
Elevator
65000 €