Default Title

Two bedroom apartment 75m2, Zabjelo
Ref. ID: 9586

Two bedroom apartment 75m2, Zabjelo
Ref. ID: 9586

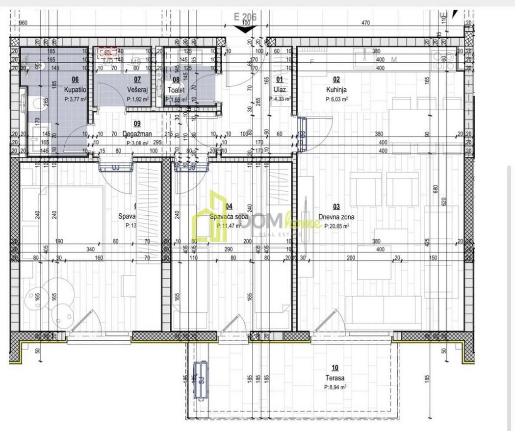
Two bedroom apartment 75m2 for sale, Zabjelo.

It is located on the second floor.

Apartment structure: entrance hall, living room, kitchen, dining room, two bedrooms, bathroom, laundry room, toilet and terrace.

The price includes a garage space.

The deadline for completion of the works is expected in May 2025.

75㎡

Total surface area

2

Number of bedrooms

2

Number of bathrooms

  • City: Podgorica

  • Settlement: Zabjelo

  • Floor: 2

  • Number of balconies / terraces: 1

  • Additional feature: In construction

Infrastructure and equipment

Air-conditioner

Parking

152000 €

Similar properties

Contact us