Default Title

Jednosoban stan 47m2, Momišići
Ref. ID: 8987

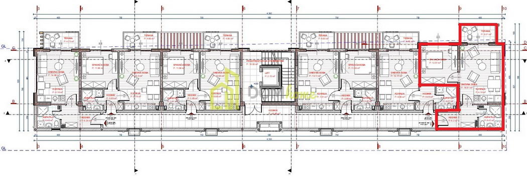
Za prodaju više jednosobnih stanova 47m2, Momišići.

Stanovi će se nalaziti u novom stambenom kompleksu Terra Residence.

Dostupni su na drugom i trećem spratu.

Orijentisani su sjever - istok - jug.

Struktura stana: Ulazni hodnik, dnevni boravak, kuhinja, trpezarija, spavaća soba, kupatilo i terasa.

Zgrada će posjedovati lift dok će u svim stanovima biti postavljeni parket, klima uređaji i električne roletne.

Postoji mogućnost kupovine ostave u podzemnoj garaži.

U cijenu je uključeno garažno mjesto (cc13m2).

Rok završetka radova je predviđen za Avgust 2025. godine.

47㎡

Ukupna kvadratura prostora

1

Broj spavaćih soba

1

Broj kupatila

  • Grad: Podgorica

  • Dio grada: Momišići

  • Spratnost: 3

  • Broj balkona / terasa: 1

  • Dodatna karakteristika: U izgradnji

Infrastruktura i oprema

Klima uređaj

Lift

Parking

Po dogovoru

Slične nekretnine

Kontaktirajte nas