Default Title

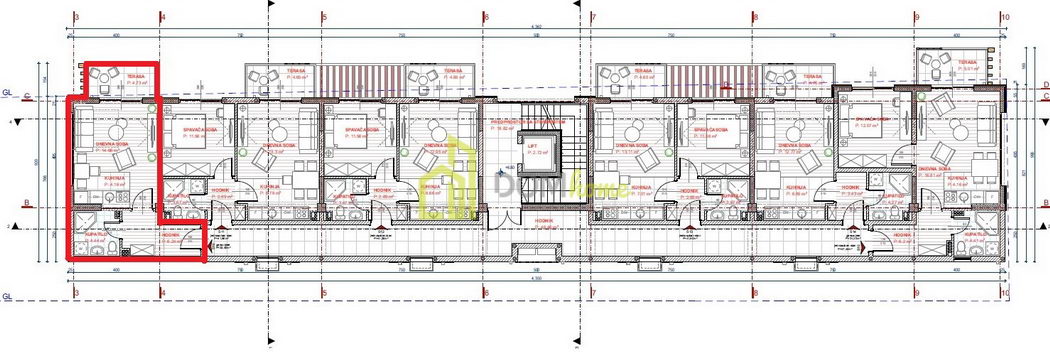
Garsonjera 33m2, Momišići
Ref. ID: 8988

🏡 Za prodaju više garsonjera 33m², Momišići, Podgorica.

📍 Stanovi će se nalaziti u novom stambenom kompleksu Terra Residence, na drugom i trećem spratu.

🌞 Orijentacija: Sjever - zapad - jug, omogućava optimalnu temperaturu i prirodnu svjetlost tokom dana.

Struktura stana: Ulazni hodnik, dnevni boravak, kuhinja, trpezarija, spavaća soba, kupatilo i terasa.

🏢 Zgrada će posjedovati lift, dok će u svim stanovima biti postavljeni parket, klima uređaji i električne roletne.

🚗 Postoji mogućnost kupovine ostave u podzemnoj garaži za dodatnu praktičnost.

🚗 U cijenu je uključeno garažno mjesto (cca 13m²), čime je osigurana udobnost za vlasnike vozila.

📅 Rok završetka radova: Predviđen za Avgust 2025. godine.

💶 Cijena: 94,500 EUR – Idealno za one koji traže moderan i komforan stan u Podgorici sa odličnim pristupom svim gradskim sadržajima.

33㎡

Ukupna kvadratura prostora

Garsonjera

Broj spavaćih soba

1

Broj kupatila

  • Grad: Podgorica

  • Dio grada: Momišići

  • Spratnost: 3

  • Broj balkona / terasa: 1

  • Dodatna karakteristika: U izgradnji

Infrastruktura i oprema

Klima uređaj

Lift

Parking

94500 €

Slične nekretnine

Kontaktirajte nas