Dvosoban stan 57m2, Zagorič
Ref. ID: 6454
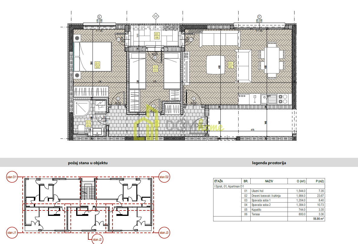
Za prodaju dvosoban stan 57m2, Zagorič.
Stan se nalazi na 1. spratu u stambeno-poslovnoj zgradi, P+2.
Struktura: ulazni hodnik, dnevni boravak, trpezarija i kuhinja, dvije spavaće sobe, kupatilo i terasa.
Stan je orijentisan trostrano sjever-zapad-jug.
Zgrada je privatnog rezidencijalnog tipa.
Na prizemlju su poslovni prostori, a na spratovima stanovi.
U sklopu cijene obezbijeđeno je parking mjesto.
Zgrada se nalazi ispod brda Gorica gdje je planirano komplet novo naselje u neposrednoj blizini marketa,hotela, apoteka itd.
Završetak radova planiran je za Oktobar 2022. godine.
57㎡
Ukupna kvadratura prostora
2
Broj spavaćih soba
-
Grad: Podgorica
-
Dio grada: Zagorič
-
Sprat: 1
-
Dodatna karakteristika: U izgradnji
Infrastruktura i oprema
Klima uređaj
Parking
77000 €