Default Title

Dvosoban stan 75m2, Zabjelo
Ref. ID: 7075

Dvosoban stan 75m2, Zabjelo
Ref. ID: 7075

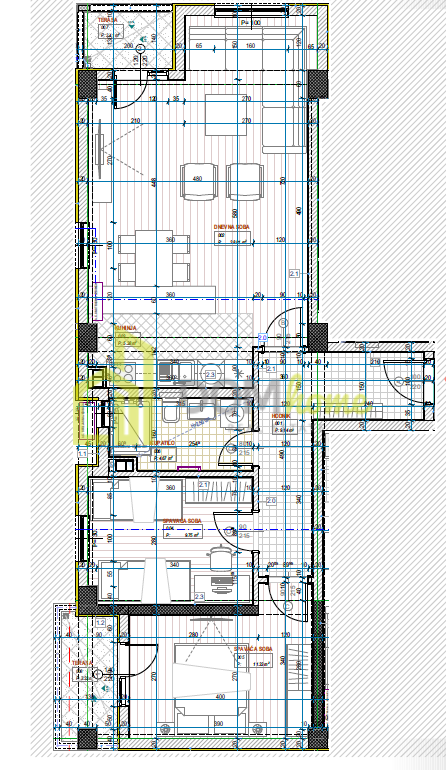
Za prodaju dva dvosobna stana po 75m2, Zabjelo.

Raspoloživost:

na 1. spratu, orijentacija jug-zapad-sjever;

na 5. spratu, orijentacija jug-sjever-istok.

Zgrada posjeduje dva lifta.

U stanu će biti postavljena PVC bravarija i parket.

Struktura: ulazni hodnik, dnevni boravak, trpezarija i kuhinja, dvije spavaće sobe, kupatilo i dvije terase.

Postoji mogućnost kupovine garažnog mjesta po cijeni od 7000€.

Rok završetka radova predviđen za April 2023 godine.

 

75㎡

Ukupna kvadratura prostora

2

Broj spavaćih soba

1

Broj kupatila

  • Grad: Podgorica

  • Dio grada: Zabjelo

  • Broj balkona / terasa: 2

  • Dodatna karakteristika: U izgradnji

Infrastruktura i oprema

Lift

105000 €

Slične nekretnine

Kontaktirajte nas