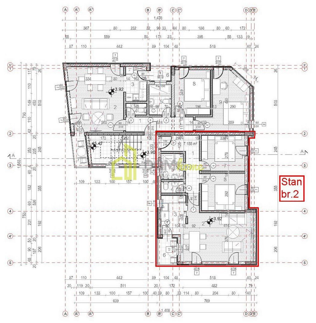
Dvosoban stan 62m2, Zagorič
Ref. ID: 7181
Za prodaju dvosoban stan 62m2, Zagorič.
Nalazi se na 1. spratu u novom stambeno-poslovnom objekatu koji se sastoji od suterena, prizemlja i dva sprata.
Zgrada je privatnog tipa sa svojim parkingom, okružena drvoredom.
U svakom stanu će biti ugrašene instalacije za klimu, ALU bravarija, parket.
Stan je orijentisan sjeveroistočno.
Rok završetka predviđen za kraj 2022. godine.
62㎡
Ukupna kvadratura prostora
2
Broj spavaćih soba
2
Broj kupatila
-
Grad: Podgorica
-
Dio grada: Zagorič
-
Sprat: 1
-
Broj balkona / terasa: 1
-
Dodatna karakteristika: U izgradnji
Infrastruktura i oprema
Parking
81000 €