Jednosoban stan 48m2, Momišići
Ref. ID: 8996
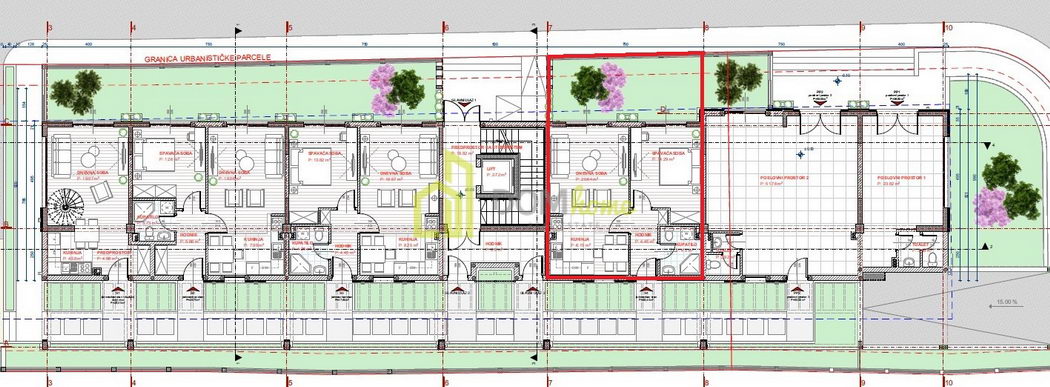
Za prodaju jednosoban 48m2, Momišići.
Nalazi se na prizemlju u novom stambenom kompleksu Terra Residence.
Stan posjeduje svoje privatno dvorište od 21m2.
Orijentisan je sjever - jug.
Struktura stana: Ulazni hodnik, dnevni boravak, kuhinja, trpezarija, spavaća soba, kupatilo i terasa.
Zgrada će posjedovati lift dok će u svim stanovima biti postavljeni parket, klima uređaji i električne roletne.
Postoji mogućnost kupovine ostave u podzemnoj garaži.
U cijenu je uključeno garažno mjesto (cc13m2).
Rok završetka radova je predviđen za Avgust 2025. godine.
48㎡
Ukupna kvadratura prostora
1
Broj spavaćih soba
1
Broj kupatila
-
Grad: Podgorica
-
Dio grada: Momišići
-
Spratnost: 3
-
Broj balkona / terasa: 1
-
Dodatna karakteristika: U izgradnji
Infrastruktura i oprema
Klima uređaj
Lift
Parking
132000 €