Default Title

Jednosoban stan 43.88m², Donja Gorica - Prodaja, U izgradnji
Ref. ID: 10096

Jednosoban stan 43.88m², Donja Gorica - Prodaja, U izgradnji
Ref. ID: 10096

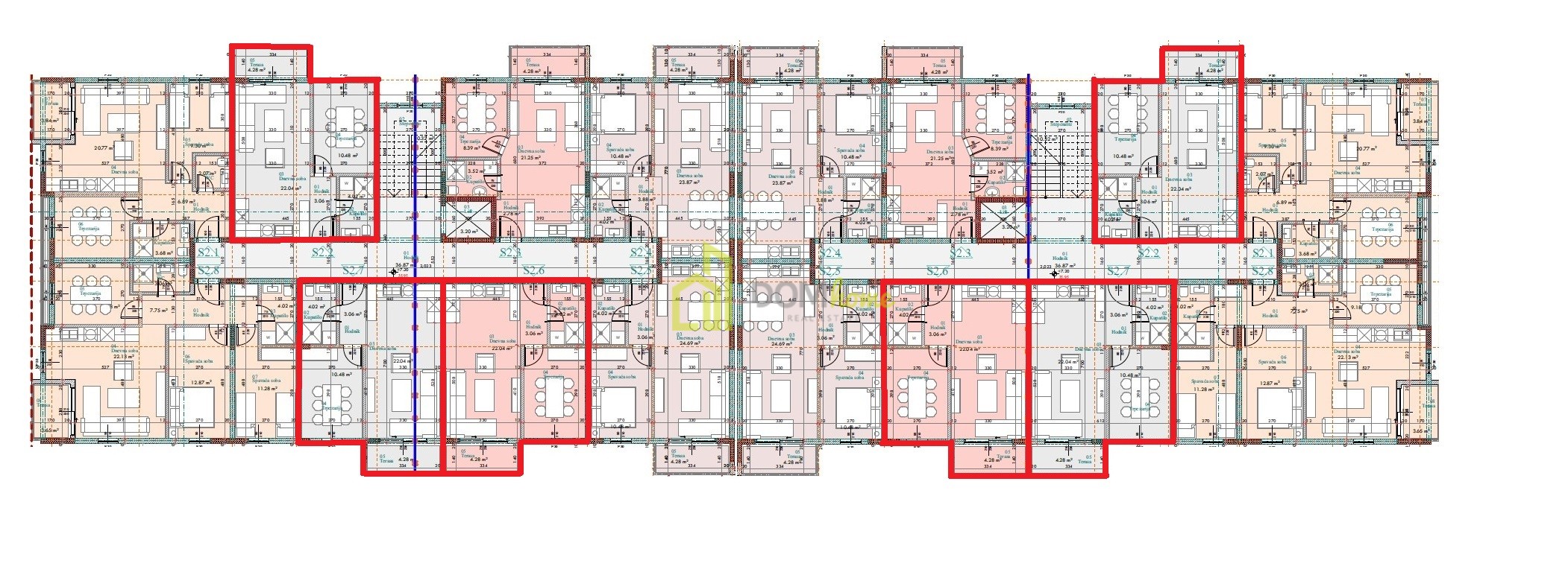
🏠 Na prodaju više jednosobnih stanova 43.88m², Donja Gorica, Podgorica.

🏢 Nalaze se u novoj manjoj privatnoj stambenoj zgradi rezidencijalnog tipa, nedaleko od Univerziteta Donja Gorica.

🏢 Dostupni su na prizemlju, prvom i drugom spratu u Lameli 1 i Lameli 2.

🛋️ U stanovima će biti postavljen troslojni tarket, klima uređaj, sanitarije MINOTI, dok će bravarija biti njemačkog brenda WINKHAUS.

🧱 Krov će biti rađen od betona na koji će ići mineralna vuna, parapropusna folija, vodenopropusna folija i crijep.

 Struktura stana: Ulazni hodnik, dnevni boravak, kuhinja, trpezarija, spavaća soba, kupatilo i terasa.

📅 Rok završetka radova se očekuje krajem 2026. godine.

44㎡

Ukupna kvadratura prostora

1

Broj spavaćih soba

1

Broj kupatila

  • Grad: Podgorica

  • Dio grada: Donja Gorica

  • Spratnost: 2

  • Broj balkona / terasa: 1

  • Dodatna karakteristika: U izgradnji

Infrastruktura i oprema

Klima uređaj

Lift

Parking

96500 €

Slične nekretnine

Kontaktirajte nas