Default Title

Jednosoban stan 41.50m2, Momišići
Ref. ID: 8983

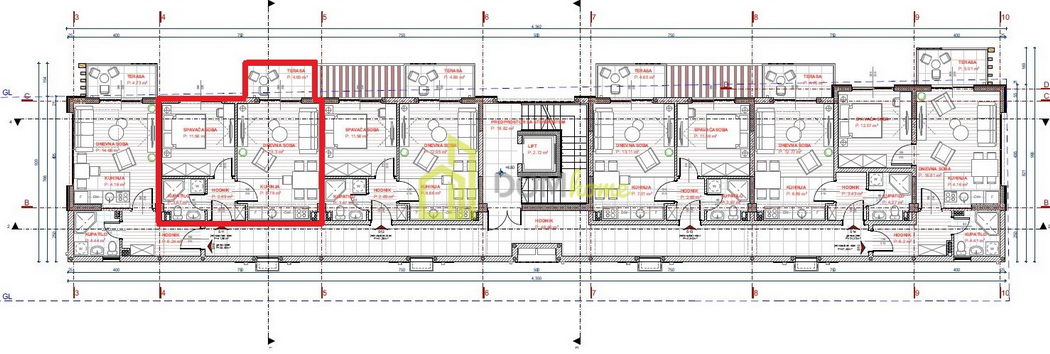
Za prodaju jednosoban stan 41.50m2, Momišići.

Stan se nalazi u novom stambenom kompleksu Terra Residence na trećem spratu.

Orijentisan je sjeverno.

Struktura stana: Ulazni hodnik, dnevni boravak, kuhinja, trpezarija, spavaća soba, kupatilo i terasa.

Zgrada će posjedovati lift dok će u svim stanovima biti postavljeni parket, klima uređaji i električne roletne.

Postoji mogućnost kupovine ostave u podzemnoj garaži.

U cijenu je uključeno garažno mjesto (cc13m2).

Rok završetka radova je predviđen za Avgust 2025. godine.

41㎡

Ukupna kvadratura prostora

1

Broj spavaćih soba

1

Broj kupatila

  • Grad: Podgorica

  • Dio grada: Momišići

  • Sprat: 3

  • Spratnost: 3

  • Broj balkona / terasa: 1

  • Dodatna karakteristika: U izgradnji

Infrastruktura i oprema

Klima uređaj

Lift

Parking

111600 €

Slične nekretnine

Kontaktirajte nas