Default Title

Jednosoban stan 47m2, Donja Gorica
Ref. ID: 9788

Na prodaju jednosoban stan 47m2, Donja Gorica.

Nalazi se na drugom spratu u zgradi koja posjeduje lift.

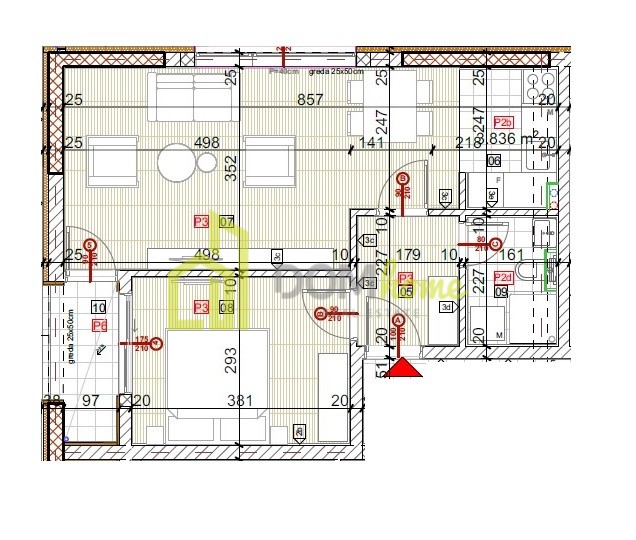
Struktura stana: Ulazni hodnik, dnevni boravak, kuhinja, trpezarija, spavaća soba, kupatilo i terasa.

Rok završetka radova se očekuje krajem 2026. godine.

Stan posjeduje obezbijeđeno parking mjesto.

47㎡

Ukupna kvadratura prostora

1

Broj spavaćih soba

1

Broj kupatila

  • Grad: Podgorica

  • Dio grada: Donja Gorica

  • Sprat: 2

  • Broj balkona / terasa: 1

  • Dodatna karakteristika: U izgradnji

Infrastruktura i oprema

Klima uređaj

Lift

Parking

98700 €

Slične nekretnine

Kontaktirajte nas